ACCUEIL
PROJETS
ABOUT
CONTACT
ACCUEIL
PROJETS
ABOUT
CONTACT
Retourner aux projets
➜
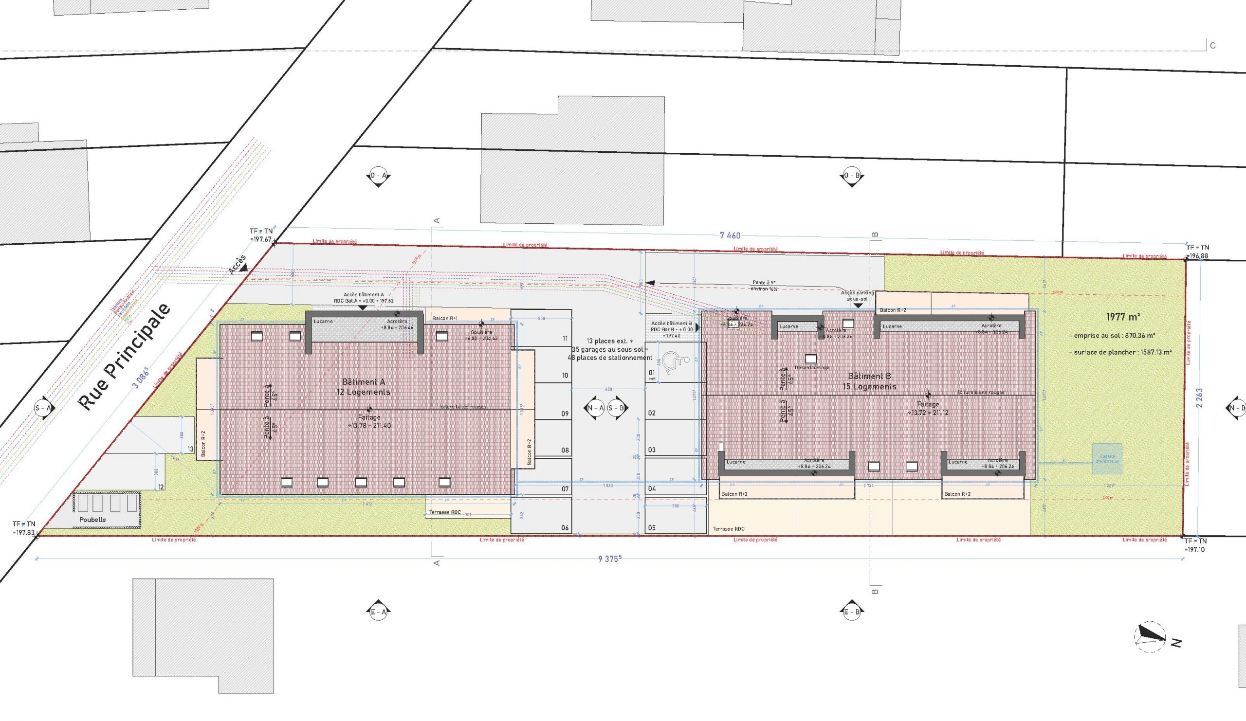
27 Logements collectifs
Location : Batzendorf
Surface : 1520 m²