ACCUEIL
PROJETS
ABOUT
CONTACT
ACCUEIL
PROJETS
ABOUT
CONTACT
Retourner aux projets
➜
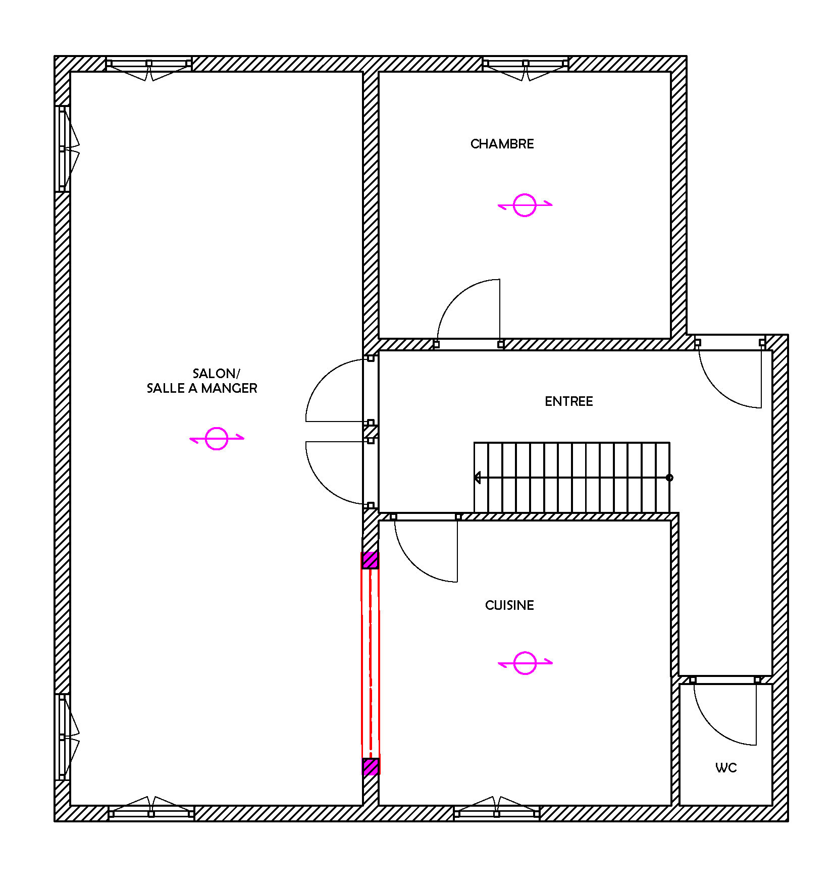
Installation poutre métallique IPN
Location : Lutzelhouse
Surface : 240 m²